von 93er Rußdame » Mittwoch 3. April 2024, 18:57
Ich hänge diesen Beitrag nun einfach hinter dahinter da die Überschrift letztlich immernoch passt, wenn anders gewünscht einfach gerne melden.
Das Thema neues Thermostat habe ich für mich an und fürsich ziefriedenstellend gelöst ich hatte vieleicht schon erwähnt dass ich den Kühlschrank über den Winter wegen der Revision ausgebaut hatte. Nun habe ich in ausgebautem Zustand alle Funktionen getestet und überprüft. Sprich 12V, 220V, Gas. Das braune Kabel (ich vermute D+ Signal habe ich mit einem weiteren kabel an den +Pol meiner am Ladegerät befindlichen Bordbatterie geklemmt. Wie gesagt die Funktionen konnte ich allesamt testen nun aber beim Einbau stoße ich auf Probleme
VORAB Gasleitung ist aktuell noch abgeklemmt.
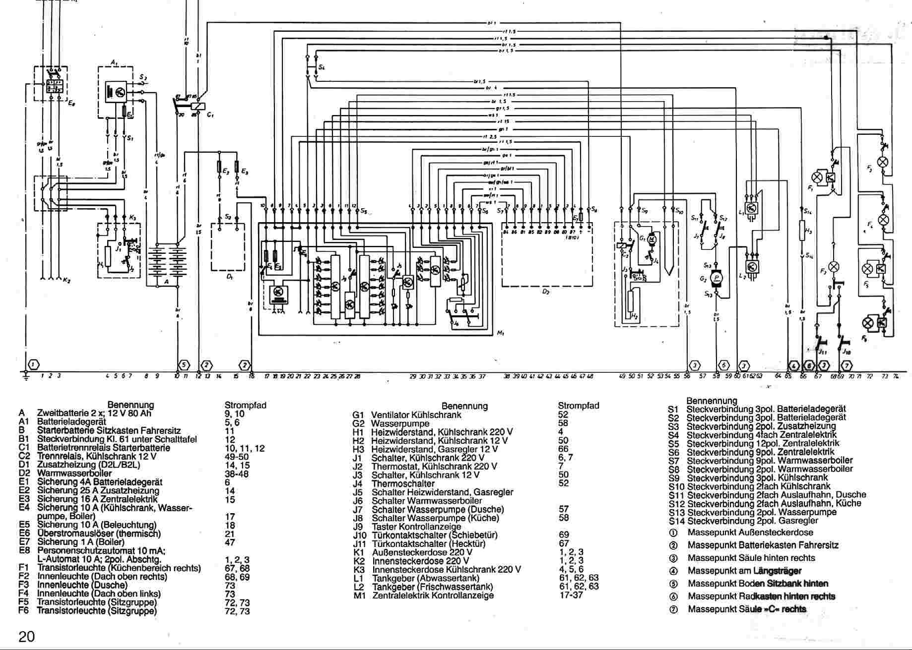
An meinem dreipoligen 12V Stecker (S9 auf dem Plan) liegt in
MOTOR AUS Stellung auf blau und schwarz jeweils die normale Batterie Spannung (12,8V) an, braun keine Spannung. -->FUNKTIONEN: Gas Zünder klickt im Gas Modus; Batteriemodus (12V Heizpatrone) ohne Funktion
MOTOR AN: Blau und Schwarz keine Spannung und braun Ladepspannung (14,1V) --> FUNKTIONEN: KEINE; Leuchte an Zentralelektrik Heck für ??? Gasbetrieb leuchtet ???
Ich kann hier natürlich nicht erwarten dass sich jemand in das Wirrwarr meiner geliebten Rußdame hineinversetzt aber vielleicht hat ja jemand noch einen Hinweis oder einen Ansatz. Mir würde schon einmal helfen wenn mir jemand sagen könnte wo ich den Anfang des Strompfads Nr. 56 finden könnte, denn irgendwo zwischen Anfang davon und Kühlschrank muss ja etwas geschehen dass zu meinem Problem führt. Gibt es einen weiteren Stromlaufplan, Für mich ist auf dem Plan wie gesagt die Herkunft des Strompfad 56 nicht ersichtlich und daher auch nicht wo das +/- und D+ abgegriffen werden.
Ein Telefonat mit dem Vorbesitzer brachte die Erkenntniss, dass wohl irgendwann kein + am Kühlschrank ankam. Das deckt sich ja ungefähr mit meiner letzten Erfahrung nur hat jemand einen Ansatz dem auf die Schliche zu kommen? Es wurden zu dieser Zeit zusätzliche Schalter für die Standheizung eingebaut um diese aus der Alkove AN- und AUS- Schalten zu können
Für jeden der sich die Mühe macht schon mal vorab vielen vielen Dank
Grüße von der Rußdame
- Dateianhänge
-

- Stromlaufplan SVEN HEDIN QUELLE: www.LT-SURFER.de
- Stromlaufplan_SVEN HEDIN.JPG (153.96 KiB) 20640-mal betrachtet